New Homes Myrtle Beach News
New Homes in Myrtle Beach
(843) 940-3609
Myrtle Beach New Home Community News
Myrtle Beach
New Home
Community
NEWS
Myrtle Beach New Home Community News

News Date: 07/15/2025

News Title: Woodland Reserve is a new home community being proposed just north of Calabash NC in Ash, NC.
Woodland Reserve is a new home community being proposed just north of Calabash NC in Ash, NC.

Woodland Reserve is conveniently located just north of Highway NC 179 and west of Highway NC 904.

Brunswick Planation is just a mile southeast from where the new home community of Woodland Reserve will be developed. Brunswick Plantation has a 27-hole championship golf course, designed by Willard Byrd and Clyde Johnston. The course is divided into three distinct 9-hole layouts: Azalea, Dogwood, and Magnolia, each offering unique challenges and scenic views.

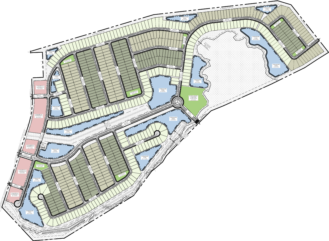
The new home community of Woodland Reserve is being planned on an approximate 232.30 acre of land.

Preliminary plans for the new home community of Woodland Reserve are showing 673 single-family units.

Lennar will be the builder in Woodland Reserve.

Lennar has not yet announced timing or pricing for the new homes in Woodland Reserve.

Homes for sale in Woodland Reserve

NOTE: Woodland Reserve was formerly know as Farmstead Grove.

There are a couple of other new subdivisions close to where the new home community of Woodland Reserve is being planned.

Sterling Oaks

Sterling Oaks is a new home community by Ryan Homes that started presales in June of 2025. The new home community of Sterling Oaks is being developed on an approximate 76.12 acre of land. There are 338 units approved for development. Ryan Homes is offering five different models in Sterling Oaks with single family homes starting in the middle $200’s.

Sterling Oaks Homes for Sale

McLamb Station


McLamb Station is a new home community by Meritage Homes. McLamb Stations is situated near the intersection of Ash Little River Road and No 5 School Road NW. McLamb Station is across the street from the new home community by Ryan Homes – Sterling Oaks. Back in September of 2023, Brunswick County initially approved 319 single-family homes on an approximate 82.39 acre of land. Meritage Homes recently proposed an expansion of the development, consisting of an additional 128 single family homes and 184 duplex units on an additional 73.26 acres. Meritage Homes has not yet announced timing of pricing for the homes in McLamb Station.
McLamb Station Homes for Sale


Woodland Reserve by Lennar
Preliminary Community Map of Woodland Reserve
Preliminary Site Map of Woodland Reserve in Ash, NC by Lennar


HOME
Page
New Homes in Myrtle Beach
By Builder
New Homes in Myrtle Beach
By Community
Useful
References
New Homes in Myrtle Beach
News
New Homes in Myrtle Beach
Future Subdivisions
New Homes in Myrtle Beach
Recently Completed
New Homes in Myrtle Beach
Site Map
Vsansant Realty Group - Full service real estate brokerage serving Myrtle Beach.
(843) 940-3609