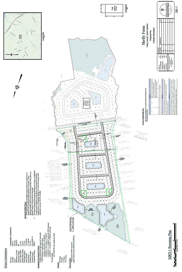
News Title:Shelly Farm is an upcoming new home community in Conway, planned to include roughly 205 single-family homes along Brown Swamp Road.
The new home community of Shelly Farm is conveniently located close to Highway 501 just north of downtown Conway. This new home community of Shelly Farm would straddle Brown Swamp Road.
Shelly Farm is a new home community being planned in Conway, featuring approximately 205 single-family homes along Brown Swamp Road.
The Conway new home community site spans two combined parcels totaling about 118 acres, with homes planned on both sides of Brown Swamp Road. Shelly Farm will be nestled between the established neighborhoods of Heritage Crossing and Corbin Estates, bringing a fresh new option for homebuyers in the Conway area.
On September 4, 2025, Horry County Planning Commission reviewed a request to rezone an approximate 64.4 acre portion (the land on the northern side of Brown Swamp Road) from Forest Agriculture (FA) & Residential (MSF 10) to Multi Residential (MRD 1). MRD 1 allows for mixed residential development in the rural areas of the county as identified on the future land use map. This MRD 1 zoning classification permits a variety of housing types, including single-family and multi-family homes.
Timing for development of Shelly Farm has not yet been announced.