New Homes Myrtle Beach - Site will list all new homes in Myrtle Beach, SC
New Homes in Myrtle Beach
(843) 940-3609

This New Homes in Myrtle Beach site is focused solely on providing a simplified guide to all of the new home communities in Myrtle Beach, SC. This web site is independently managed to serve and support development of the Myrtle Beach community and is a unique Myrtle Beach new home resource. All Myrtle Beach new home communities are presented without the influence or dependence of community or builder advertising. Input to improving the quality of this community resource presenting new construction in Myrtle Beach is welcomed and appreciated. Information on this site was last updated November 2025.
Artisan Living @ Surfside
Myrtle Beach New Home Community By Lennar
Scipio Lane, Surfside, SC, 29585
Artisan Living at Surfside by Lennar

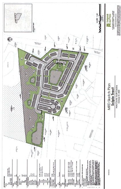
Preliminary Site Map
Artisan Living @ Surfside
Preliminary Site Map - Artisan Living @ Surfside
For Information Purposes Only
Data Subject to Change
Data Courtesy of North Myrtle Beach

Prices (estimate only) Starting from :
Summary of this Myrtle Beach Area New Home Community:
In September of 2024, Lennar purchased a 28.2 parcel of land in Surfside. This property is conveniently located along Scipio Lane just off of Holmestown Road near Highway 17 Business. Weslin Creek, The Gate @ Surfside Beach, Coastal Pines and The Lakes are a few of the existing subdivisions near where this new townhome community will be developed.

Preliminary plans are for there to be 180 townhomes.

The name of this new townhome community in Surfside is Artisan Living @ Surfside.

Lennar has not yet announced timing or plans for development in the new townhome community of Artisan Living at Surfside.

Since 1954, Lennar has built over one million new homes for families across America. Lennar builds in some of the nation’s most popular cities, and their communities cater to all lifestyles and family dynamics, whether you are a first-time or move-up buyer, multigenerational family, or Active Adult. In 2023, Lennar was the second largest home construction company in the Unites States based upon number of homes sold. Lennar operates in 26 states and 75 markets across the Unites States. Lennar is well committed to building in the Myrtle Beach area. Lennar is actively building in over 20 communities in the Myrtle Beach area.

Existing Homes for Sale in this Myrtle Beach Area New Home Community:
Artisan Living @ Surfside is a new Surfside community that is still in the planning stages.
Townhomes for Sale in Artisan Living @ Surfside

Myrtle Beach New Home Community News
New construction in Myrtle Beach - all active listings of new construction in Myrtle Beach
Myrtle Beach New Home Community News

Vansant Realty Group - real estate brokerage firm servicing Conway and the surrounding areas of Myrtle Beach.
(843) 940-3609
Planned Future Subdivisions in the Myrtle Beach Area
Artisan Living @ Surfside is one of several new future subdivisions planned for the Myrtle Beach area. See below for a more complete list of the future subdivisions planned for the Myrtle Beach area.
CommunityAreaAddressMulti-FamilySingle-Family
57th PlaceLongsWampee Road8080
Amerling RidgeLongsLong Acres Drive090
Artisan Living @ SurfsideSurfsideScipio Lane0180
Ash PlantationConwayHighway 707068
Barefoot LakesNorth Myrtle BeachMarsh Glen Drive059
Bayboro QuartersLorisHighway 450206
BaylineCalabashThomasboro Road3631796
Beachside Village CommonsMyrtle Beach3122 Shetland Lane043
BrookhavenConwayJuniper Bay Rd & Hwy 37801200
Buck Creek CoveLongsHighway 9 East074
Calabash PointeCalabashHickman Rd NW & Hwy 172160
Calabay ParkLongsRte 9 & Hemingway Rd230400
CamberlyCarolina ForestTibwin Avenue058
Cane Patch NorthMyrtle Beach76th Ave and Highway 17062
Carolina Forest WaterwayCarolina ForestRiver Oaks Drive0560
Carroll FarmsConwayW Hwy 19 and Hwy 668046
Cascadia at Grande DunesMyrtle Beach628 Verdura Way045
Cates BayConwaySpring Beauty Drive0116
Cates Bay CrossingConwayCates Bay Highway095
Chapman VillageConway2608 Hudson Trail045
Chatham VillageCarolina ForestPostal Way15410
Church Street TownhomesMyrtle BeachChurch Street220
ClearbrookConwayJohn Doctor Road0230
Collins JollieConwayCollins Jollie Road01333
Colonial FarmsConwaySC Highway 54897131
Cottonwood CoveCarolina ForestRiver Oaks Drive018
Country Manor EstateConwayFour Mile Road049
Dockside PreserveNorth Myrtle BeachBowline Boulevard0127
Dunn's FerryConway1260 West Cox Ferry Road051
East Cox Ferry TownhomesConwayEast Cox Ferry Road750
Elmhurst CrossingConwayCultra Road & Oak Street0144
EvingtonLongs13051 N Highway 9050147
FarmsteadLittle RiverRoute 50 & McLamb Road NW315134
Finley WoodsLorisSuggs Street036
Forest View TownhomesCalabashAsh-Little River Rd NW1070
Fox BayLorisCarolina Drive012
Fox HollowCalabash423 Pea Landing Rd NW0166
FreewoodsMyrtle BeachFreewoods Road & Herbert Lane025
Glenwood at Cates BayConwayCates Bay Highway0100
Grande PinesSocasteeHwy 17 and Hwy 5440273
Half Moon BayLongsToanki Lane and Tallwood Rd 800
Haven at Wild WingConwayWild Wing Boulevard5340
Hemingway LandingConwayHemingway Chapel Rd077
Heron LandingLongsKayla Circle0140
Hickman Branch TownhomesCalabashHickman Road NW3160
Hudson Creek at Palmetto HarborNorth Myrtle BeachCenith Drive033
Hugo Road EstatesConwayHugo Road053
Juniper BayConway1400 Busy Corner Road061
Kingston LakesLongs7650 S. Highway 9093
Kingston PreserveConwayHwy 378 & Hemingway Chapel Rd0407
LaDane GardensOcean Isle Beach7060 Old Georgetown Road SW0525
Leisure LaneSocasteeLeisure Lane0154
Long Bay VillageNorth Myrtle BeachBowline Boulevard0137
Long Branch EstatesConwayLong Branch Rd and Hwy 65074
Loris HeightsLoris150 Highway 747044
Magic OaksPawleys Island10798 Highway 17027
Magnolia LandingLongsHwy 9 & Circle M Road0122
Maple GroveConwayCollins Jollie Road0176
Marina VillageMyrtle BeachMarina Parkway and 79th Ave N0111
Marlowe FarmsLorisHewitt Road and Highway 660253
MartinLongsUnderwood Road0107
McCormick TownhomesForestbrookMcCormick Road3030
McLamb StationCalabashNo 5 School Rd NW184447
Medlen ParkConwayMedlen Parkway1020
MiddlebrookeMurrells InletUS 17 & Garden City Connector150338
Mills PointeConwayBelladora Road660
Mossy Hill TownhomesCalabashHickman Road NW5920
Mullet Creek TownhomesLittle RiverHighway 179100
Myrtle WestLorisMyrtle West Drive030
Norris FarmsConwayDock Road0134
North CoveCarolina ForestRiver Oaks Drive0220
Orchard ParkLittle RiverMineola and Apple Tree Lane081
Palmetto Bays EstatesConwaySC 814 & Route 544120350
Palmetto BluffLongsMcNeil Chapel Road0169
Palmetto PlaceLongsPint Circle079
Palmetto RanchLongsHwy 905 & Old Buck Creek Rd318974
Palmetto TraceNorth Myrtle BeachAtlantic Breeze Drive1820
Pelican Pointe (Kingston Preserve)ConwayHwy 378 & Hemingway Chapel Rd0407
Pine RidgeMyrtle BeachUS 17 and Holmestown Rd975942
Poplar OaksConway101 Anderson Tract Drive080
Remuda RunOcean Isle BeachOcean Isle Beach Road9560
Reserve at MillpondConwayMill Pond Lane2340
Ridge Road TractAynorRidge Road077
River Oaks - Fox and OtterCarolina ForestRiver Oaks Drive0363
RiverfieldConwayOld Pireway & Hwy 9050194
Rivers Edge VillageConwayE. Country Club Dr0127
Riverwood at Sherwood ForestConwayGraham Road0147
Rolling HillsAynorHighway 501 & Floyd Page0421
Rosewood DriveLorisRosewood Drive0168
Rye Pint TownhomesCalabashHickman Road NW1760
Sailors HavenCalabash776 Seaside Road0299
Saint Mark's WoodsConwayHwy 60 and E. Cox Ferry Rd7891
SayeBrook EastSurfsideSayeBrook Pkwy and Hwy 5442355685
SayeBrook EastSurfsidePalmetto Point Blvd2355685
SayeBrook EastSurfsideSayeBrook Pkwy and Hwy 5442355685
Shell Bay EstatesConwayHighway 905022
Shelley Park SouthConwayShelly Farm Rd and Bucksville Dr0384
Shelly FarmConway580 Brown Swamp Road0205
Silver Oaks CottagesLorisNorth Cox Road031
SolserraShallotte589 Paradise Bay Blvd01000

NOTE: The estimated planned units above are for information purposes only and there is no guarantee on the accuracy of this data.
See Horry County Planning and Zoning for current data.
HOME
Page
New Homes in Myrtle Beach
By Builder
New Homes in Myrtle Beach
By Community
Useful
References
New Homes in Myrtle Beach
News
New Homes in Myrtle Beach
Future Subdivisions
New Homes in Myrtle Beach
Recently Completed
New Homes in Myrtle Beach
Site Map

The Myrtle Beach community is rapidly growing and the new construction opportunities in Myrtle Beach are ever-changing. A significant amount of time is dedicated to ensuring that the content on this site is comprehensive and accurate. The efforts of our sponsors are greatly appreciated.
New Homes in Myrtle Beach
Primary Sponsor
Vsansant Realty Group - Full service real estate brokerage serving Myrtle Beach.
(843) 940-3609

Links to Useful Resources for Longs, SC