New Homes Myrtle Beach - Site will list all new homes in Myrtle Beach, SC
New Homes in Myrtle Beach
(843) 940-3609

This New Homes in Myrtle Beach site is focused solely on providing a simplified guide to all of the new home communities in Myrtle Beach, SC. This web site is independently managed to serve and support development of the Myrtle Beach community and is a unique Myrtle Beach new home resource. All Myrtle Beach new home communities are presented without the influence or dependence of community or builder advertising. Input to improving the quality of this community resource presenting new construction in Myrtle Beach is welcomed and appreciated. Information on this site was last updated May 2026.
Parkview
Myrtle Beach New Home Community By Lennar
101 Parkview Drive, Surfside, SC, 29585
New town home community Parkview in the Surfside area of Myrtle Beach by Lennar
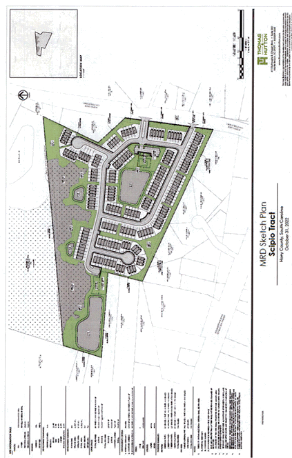
Preliminary Site Map
Parkview
Preliminary Site Map - Parkview by Lennar
For Information Purposes Only
Data Subject to Change
Data Courtesy of North Myrtle Beach
Prices (estimate only) Starting from :
Summary of this Myrtle Beach Area New Home Community:
Parkview is a new townhome community in the Myrtle Beach area near Surfside that started presales in February of 2026.

The new townhome community of Parkview is located just off of Holmestown Road – a convenient gateway between Myrtle Beach and Surfside Beach. The Parkview townhome community is close to major roads and local roads that feed into Highway 17 and Surfside Beach.

Weslin Creek, The Gate @ Surfside Beach, Coastal Pines and The Lakes are a few of the existing subdivisions near where the new townhome community of Parkview is being developed.

In September of 2024, Lennar purchased this 28.2 parcel of land in Surfside.

Preliminary plans for the Parkview townhome community are showing 180 townhomes.

The Parkview townhome community will have a community swimming pool.

Lennar is pricing the townhomes in Parkview starting from $319,000 to $326,000.

Existing Homes for Sale in this Myrtle Beach Area New Home Community:
Parkview is a new Surfside townhome community that started presales in February of 2026.
Townhomes for Sale in Parkview

Myrtle Beach New Home Community News
New construction in Myrtle Beach - all active listings of new construction in Myrtle Beach
Myrtle Beach New Home Community News

Vansant Realty Group - real estate brokerage firm servicing Conway and the surrounding areas of Myrtle Beach.
(843) 940-3609
The builder of this Myrtle Beach area new town home community of Parkview, Lennar, is also invested in other Myrtle Beach area new home communities. Below you will find other new home communities in Myrtle Beach which this builder is developing.
CommunityStarting PriceAreaAddressSubdivision Status
Hide details for LennarLennar
57th PlaceLongsWampee RoadFuture Subdivision
Arcadia$325,000Forestbrook294 Empyrean CircleUnder Construction
Beach View at Grande Dunes$675,000Myrtle Beach302 Colonnade AveUnder Construction
Beach Village$306,000Surfside344 North Reindeer RoadLennar Completed 2023
Belle Harbor$340,000Myrtle Beach2409 Rock Dove DriveLennar Completed 2022
Berwick at Windsor Plantation$325,000Surfside3-A Nairn DriveDevelopment Completed 2022
Birchwood$227,500Longs101 Birchwood DriveUnder Construction
Brunswick Plantation$220,000Calabash8881 Radcliff Drive NWUnder Construction
Calabash PointeCalabashHickman Rd NW & Hwy 17Future Subdivision
CamberlyCarolina ForestTibwin AvenueFuture Subdivision
Cameron PinesOcean Isle Beach101 Cameron Pines DriveFuture Subdivision
Champions Park$319,900Little River700 Solomon RoadUnder Construction
ClearbrookConwayJohn Doctor RoadFuture Subdivision
Collins Walk$240,000Conway1105 Blueback Herring WayUnder Construction
Cooper's Bluff$269,000ConwaySwing Bridge WayLennar Completed 2024
Covington Lake East$350,000Carolina Forest111 East Covington DriveLennar Completed 2022
Fieldview$280,000Conway101 Fox Rae DriveUnder Construction
Forestbrook Estates$250,000Forestbrook116 Long Cane DriveUnder Construction
Forestbrook VillageForestbrook104 Long Cane DriveFuture Subdivision
Fox HollowCalabash423 Pea Landing Rd NWFuture Subdivision
Glenmoor$315,000Conway219 Glenmoor DriveDevelopment Completed 2022
Hidden Pines$403,000Carolina Forest124 Albatross WayDevelopment Completed 2025
Hoffman Park$280,000Myrtle Beach121 Hoffman Park DriveDevelopment Completed 2025
Hunters Trace$300,000Calabash1084 Harbor DriveUnder Construction
Indigo Creek$440,000Murrells Inlet9680 Indigo Creek BlvdUnder Construction
Islewater at Grande DunesMyrtle Beach79th Ave & Marina PkwyFuture Subdivision
Kingston Oaks$235,000Conway101 Collins Jollie RoadUnder Construction
Longview$290,000Longs124 Cypress Tree LoopDevelopment Completed 2022
Osprey Isle$240,000Ocean Isle Beach101 Osprey Isle DriveUnder Construction

HOME
Page
New Homes in Myrtle Beach
By Builder
New Homes in Myrtle Beach
By Community
Useful
References
New Homes in Myrtle Beach
News
New Homes in Myrtle Beach
Future Subdivisions
New Homes in Myrtle Beach
Recently Completed
New Homes in Myrtle Beach
Site Map

The Myrtle Beach community is rapidly growing and the new construction opportunities in Myrtle Beach are ever-changing. A significant amount of time is dedicated to ensuring that the content on this site is comprehensive and accurate. The efforts of our sponsors are greatly appreciated.
New Homes in Myrtle Beach
Primary Sponsor
Vsansant Realty Group - Full service real estate brokerage serving Myrtle Beach.
(843) 940-3609

Links to Useful Resources for Longs, SC