Artisan Living @ Surfside |
Preliminary Site Map
Artisan Living @ Surfside
For Information Purposes Only
Data Subject to Change
Data Courtesy of North Myrtle Beach
Community | Area | Address | Multi-Family | Single-Family |
---|---|---|---|---|
![]() | Longs | Wampee Road | 80 | 80 |
![]() | Longs | Long Acres Drive | 0 | 90 |
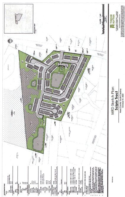
![]() | Surfside | Scipio Lane | 0 | 180 |
![]() | Conway | Highway 707 | 0 | 68 |
![]() | North Myrtle Beach | Marsh Glen Drive | 0 | 59 |
![]() | Loris | Highway 45 | 0 | 206 |
![]() | Calabash | Thomasboro Road | 363 | 1796 |
![]() | Conway | 5100 Highway 501 West | 0 | 157 |
![]() | Myrtle Beach | 3122 Shetland Lane | 0 | 43 |
![]() | Conway | Juniper Bay Rd & Hwy 378 | 0 | 1200 |
![]() | Longs | Highway 9 East | 0 | 74 |
![]() | Calabash | Hickman Rd NW & Hwy 17 | 216 | 0 |
![]() | Longs | Rte 9 & Hemingway Rd | 230 | 400 |
![]() | Myrtle Beach | 76th Ave and Highway 17 | 0 | 62 |
![]() | Carolina Forest | River Oaks Drive | 0 | 560 |
![]() | Conway | W Hwy 19 and Hwy 668 | 0 | 46 |
![]() | Conway | Spring Beauty Drive | 0 | 116 |
![]() | Conway | Cates Bay Highway | 0 | 95 |
![]() | Conway | Hudson Trail | 0 | 45 |
![]() | Carolina Forest | Postal Way | 154 | 10 |
![]() | Conway | John Doctor Road | 0 | 230 |
![]() | Conway | Collins Jollie Road | 0 | 1333 |
![]() | Conway | SC Highway 548 | 97 | 131 |
![]() | Carolina Forest | River Oaks Drive | 0 | 18 |
![]() | Conway | Four Mile Road | 0 | 49 |
![]() | Shallotte | Bricklanding Road | 0 | 85 |
![]() | Conway | 1260 West Cox Ferry Road | 0 | 51 |
![]() | Conway | East Cox Ferry Road | 75 | 0 |
![]() | Conway | Cultra Road & Oak Street | 0 | 144 |
![]() | Little River | Route 50 & McLamb Road NW | 315 | 134 |
![]() | Loris | Suggs Street | 0 | 36 |
![]() | Calabash | Ash-Little River Rd NW | 107 | 0 |
![]() | Loris | Carolina Drive | 0 | 12 |
![]() | Calabash | 423 Pea Landing Rd NW | 0 | 166 |
![]() | Myrtle Beach | Freewoods Road & Herbert Lane | 0 | 25 |
![]() | Conway | Cates Bay Highway | 0 | 100 |
![]() | Longs | Toanki Lane and Tallwood Rd | 80 | 0 |
![]() | Conway | Wild Wing Boulevard | 534 | 0 |
![]() | Conway | Hemingway Chapel Rd | 0 | 77 |
![]() | Longs | Kayla Circle | 0 | 140 |
![]() | Calabash | Hickman Road NW | 316 | 0 |
![]() | Conway | Hugo Road | 0 | 53 |
![]() | Conway | 1400 Busy Corner Road | 0 | 61 |
![]() | Longs | 7650 S. Highway 9 | 0 | 93 |
![]() | Conway | Hwy 378 & Hemingway Chapel Rd | 0 | 407 |
![]() | Socastee | Leisure Lane | 0 | 154 |
![]() | North Myrtle Beach | Bowline Boulevard | 0 | 137 |
![]() | Conway | Long Branch Rd and Hwy 65 | 0 | 74 |
![]() | Loris | 150 Highway 747 | 0 | 44 |
![]() | Pawleys Island | 10798 Highway 17 | 0 | 27 |
![]() | Longs | Hwy 9 & Circle M Road | 0 | 122 |
![]() | Conway | Collins Jollie Road | 0 | 176 |
![]() | Myrtle Beach | Marina Parkway and 79th Ave N | 0 | 111 |
![]() | Loris | Hewitt Road and Highway 66 | 0 | 253 |
![]() | Longs | Underwood Road | 0 | 107 |
![]() | Forestbrook | McCormick Road | 303 | 0 |
![]() | Calabash | No 5 School Rd NW | 184 | 447 |
![]() | Conway | Medlen Parkway | 102 | 0 |
![]() | Murrells Inlet | US 17 & Garden City Connector | 150 | 338 |
![]() | Conway | Belladora Road | 66 | 0 |
![]() | Calabash | Hickman Road NW | 592 | 0 |
![]() | Little River | Highway 179 | 10 | 0 |
![]() | Loris | Myrtle West Drive | 0 | 30 |
![]() | Conway | Dock Road | 0 | 134 |
![]() | Carolina Forest | River Oaks Drive | 0 | 220 |
![]() | Little River | Mineola and Apple Tree Lane | 0 | 81 |
![]() | Conway | SC 814 & Route 544 | 120 | 350 |
![]() | Longs | McNeil Chapel Road | 0 | 169 |
![]() | Longs | Pint Circle | 0 | 79 |
![]() | North Myrtle Beach | Atlantic Breeze Drive | 182 | 0 |
![]() | Conway | Hwy 378 & Hemingway Chapel Rd | 0 | 407 |
![]() | Myrtle Beach | US 17 and Holmestown Rd | 975 | 942 |
![]() | Conway | 101 Anderson Tract Drive | 0 | 80 |
![]() | Ocean Isle Beach | Ocean Isle Beach Road | 95 | 60 |
![]() | Conway | Mill Pond Lane | 234 | 0 |
![]() | Aynor | Ridge Road | 0 | 77 |
![]() | Conway | Old Pireway & Hwy 905 | 0 | 199 |
![]() | Conway | E. Country Club Dr | 0 | 127 |
![]() | Conway | Graham Road | 0 | 147 |
![]() | Aynor | Highway 501 & Floyd Page | 0 | 421 |
![]() | Loris | Rosewood Drive | 0 | 168 |
![]() | Calabash | Hickman Road NW | 176 | 0 |
![]() | Calabash | 776 Seaside Road | 0 | 299 |
![]() | Conway | Hwy 60 and E. Cox Ferry Rd | 78 | 91 |
![]() | Surfside | SayeBrook Pkwy and Hwy 544 | 2355 | 685 |
![]() | Surfside | Palmetto Point Blvd | 2355 | 685 |
![]() | Surfside | SayeBrook Pkwy and Hwy 544 | 2355 | 685 |
![]() | Little River | 4414 Kingsport Road | 58 | 0 |
![]() | Conway | Highway 905 | 0 | 22 |
![]() | Conway | Shelly Farm Rd and Bucksville Dr | 0 | 384 |
![]() | Conway | 580 Brown Swamp Road | 0 | 205 |
![]() | Loris | North Cox Road | 0 | 31 |
![]() | Shallotte | 589 Paradise Bay Blvd | 0 | 1000 |
![]() | Longs | W Bear Grass Rd & Circle Bay Dr | 0 | 213 |
![]() | Carolina Forest | 4900 National Drive | 0 | 80 |
![]() | Loris | Sparrow Ln & Suggs St | 0 | 11 |
![]() | Conway | Spring Beauty Drive | 0 | 100 |
![]() | Little River | Coates Road & Highway 90 | 0 | 212 |
![]() | Shallotte | 1125 Bay Road SW | 0 | 66 |
![]() | North Myrtle Beach | Tom E. Chestnut Road | 0 | 41 |