New Homes Myrtle Beach - Site will list all new homes in Myrtle Beach, SC
New Homes in Myrtle Beach
(843) 940-3609

This New Homes in Myrtle Beach site is focused solely on providing a simplified guide to all of the new home communities in Myrtle Beach, SC. This web site is independently managed to serve and support development of the Myrtle Beach community and is a unique Myrtle Beach new home resource. All Myrtle Beach new home communities are presented without the influence or dependence of community or builder advertising. Input to improving the quality of this community resource presenting new construction in Myrtle Beach is welcomed and appreciated. Information on this site was last updated October 2025.
Remuda Run
Myrtle Beach New Home Community By Dream Finders Homes
Ocean Isle Beach Road, Ocean Isle Beach, NC, 28470
Remuda Run in Ocean Isle Beach
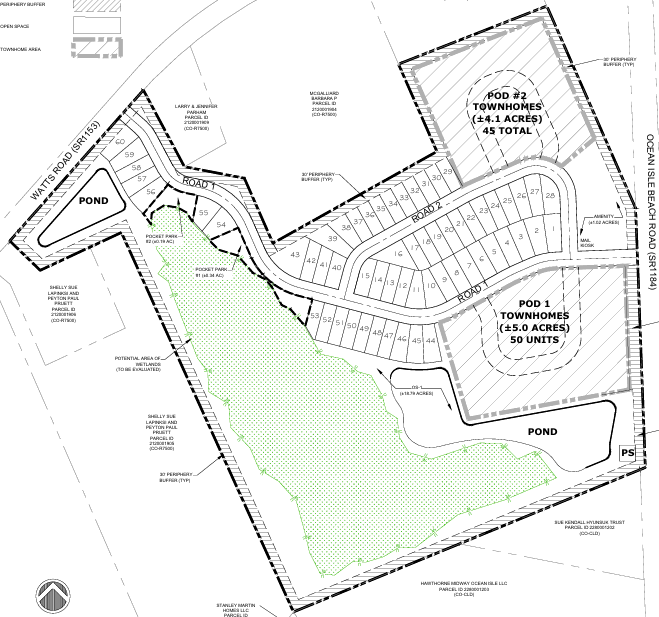
Preliminary Community Map of Remuda Run
Preliminary Community Map of Remuda Run

Prices (estimate only) Starting from :
Summary of this Myrtle Beach Area New Home Community:
The new home community of Remuda Run is conveniently located just up the road in North Carolina in Ocean Isle Beach.

Remuda Run will be developed near the Hawthorne Ocean Isle complex that is currently being constructed and close to Big Cats at Ocean Ridge Plantation Golf course communities. Ocean Ridge Plantation is renowned for its collection of four championship golf courses collectively known as the "Big Cats." These courses—Lion’s Paw, Panther’s Run, Tiger’s Eye, and Leopard’s Chase—offer diverse and challenging layouts set amidst the natural beauty of the coastal Carolinas.

Preliminary plans from Dream Finders Homes are to build 60 single-family homes and 95 townhomes on the approximate 45 acre parcel of land that will become the new Ocean Isle Beach community of Remuda Run.

Dream Finders Homes operates across 10 states, 22 different markets, close to 225 unique communities, and has closed over 31,000 homes.  Dream Finders Homes is very active in Myrtle Beach and the surrounding areas of Myrtle Beach with about a dozen new home communities either currently under construction or planned for development.

Dream Finders Homes has not yet announced timing or plans for the development of the Remuda Run community.

Existing Homes for Sale in this Myrtle Beach Area New Home Community:
This Ocean Isle Beach new home community of Remuda Run by Dream Finders Homes has not yet started presales.
Remuda Run Homes for Sale

Myrtle Beach New Home Community News
New construction in Myrtle Beach - all active listings of new construction in Myrtle Beach
Myrtle Beach New Home Community News

Vansant Realty Group - real estate brokerage firm servicing Conway and the surrounding areas of Myrtle Beach.
(843) 940-3609
Planned Future Subdivisions in Myrtle Beach
Remuda Run is one of several new future subdivisions planned for Ocean Isle Beach. See below for a more complete list of the future subdivisions planned for Myrtle Beach and the surrounding areas of Myrtle Beach.
CommunityAreaAddressMulti-FamilySingle-Family
57th PlaceLongsWampee Road8080
Amerling RidgeLongsLong Acres Drive090
Artisan Living @ SurfsideSurfsideScipio Lane0180
Ash PlantationConwayHighway 707068
Barefoot LakesNorth Myrtle BeachMarsh Glen Drive059
Bayboro QuartersLorisHighway 450206
BaylineCalabashThomasboro Road3631796
BayviewConway5100 Highway 501 West0157
Beachside Village CommonsMyrtle Beach3122 Shetland Lane043
BrookhavenConwayJuniper Bay Rd & Hwy 37801200
Buck Creek CoveLongsHighway 9 East074
Calabash PointeCalabashHickman Rd NW & Hwy 172160
Calabay ParkLongsRte 9 & Hemingway Rd230400
Cane Patch NorthMyrtle Beach76th Ave and Highway 17062
Carolina Forest WaterwayCarolina ForestRiver Oaks Drive0560
Carroll FarmsConwayW Hwy 19 and Hwy 668046
Cates BayConwaySpring Beauty Drive0116
Cates Bay CrossingConwayCates Bay Highway095
Chapman VillageConwayHudson Trail045
Chatham VillageCarolina ForestPostal Way15410
ClearbrookConwayJohn Doctor Road0230
Collins JollieConwayCollins Jollie Road01333
Colonial FarmsConwaySC Highway 54897131
Cottonwood CoveCarolina ForestRiver Oaks Drive018
Country Manor EstateConwayFour Mile Road049
Creekview LandingShallotteBricklanding Road085
Dunn's FerryConway1260 West Cox Ferry Road051
East Cox Ferry TownhomesConwayEast Cox Ferry Road750
Elmhurst CrossingConwayCultra Road & Oak Street0144
FarmsteadLittle RiverRoute 50 & McLamb Road NW315134
Finley WoodsLorisSuggs Street036
Forest View TownhomesCalabashAsh-Little River Rd NW1070
Fox BayLorisCarolina Drive012
Fox HollowCalabash423 Pea Landing Rd NW0166
FreewoodsMyrtle BeachFreewoods Road & Herbert Lane025
Glenwood at Cates BayConwayCates Bay Highway0100
Half Moon BayLongsToanki Lane and Tallwood Rd 800
Haven at Wild WingConwayWild Wing Boulevard5340
Hemingway LandingConwayHemingway Chapel Rd077
Heron LandingLongsKayla Circle0140
Hickman Branch TownhomesCalabashHickman Road NW3160
Hugo Road EstatesConwayHugo Road053
Juniper BayConway1400 Busy Corner Road061
Kingston LakesLongs7650 S. Highway 9093
Kingston PreserveConwayHwy 378 & Hemingway Chapel Rd0407
Leisure LaneSocasteeLeisure Lane0154
Long Bay VillageNorth Myrtle BeachBowline Boulevard0137
Long Branch EstatesConwayLong Branch Rd and Hwy 65074
Loris HeightsLoris150 Highway 747044
Magic OaksPawleys Island10798 Highway 17027
Magnolia LandingLongsHwy 9 & Circle M Road0122
Maple GroveConwayCollins Jollie Road0176
Marina VillageMyrtle BeachMarina Parkway and 79th Ave N0111
Marlowe FarmsLorisHewitt Road and Highway 660253
MartinLongsUnderwood Road0107
McCormick TownhomesForestbrookMcCormick Road3030
McLamb StationCalabashNo 5 School Rd NW184447
Medlen ParkConwayMedlen Parkway1020
MiddlebrookeMurrells InletUS 17 & Garden City Connector150338
Mills PointeConwayBelladora Road660
Mossy Hill TownhomesCalabashHickman Road NW5920
Mullet Creek TownhomesLittle RiverHighway 179100
Myrtle WestLorisMyrtle West Drive030
Norris FarmsConwayDock Road0134
North CoveCarolina ForestRiver Oaks Drive0220
Orchard ParkLittle RiverMineola and Apple Tree Lane081
Palmetto Bays EstatesConwaySC 814 & Route 544120350
Palmetto BluffLongsMcNeil Chapel Road0169
Palmetto PlaceLongsPint Circle079
Palmetto TraceNorth Myrtle BeachAtlantic Breeze Drive1820
Pelican Pointe (Kingston Preserve)ConwayHwy 378 & Hemingway Chapel Rd0407
Pine RidgeMyrtle BeachUS 17 and Holmestown Rd975942
Poplar OaksConway101 Anderson Tract Drive080
Remuda RunOcean Isle BeachOcean Isle Beach Road9560
Reserve at MillpondConwayMill Pond Lane2340
Ridge Road TractAynorRidge Road077
RiverfieldConwayOld Pireway & Hwy 9050199
Rivers Edge VillageConwayE. Country Club Dr0127
Riverwood at Sherwood ForestConwayGraham Road0147
Rolling HillsAynorHighway 501 & Floyd Page0421
Rosewood DriveLorisRosewood Drive0168
Rye Pint TownhomesCalabashHickman Road NW1760
Sailors HavenCalabash776 Seaside Road0299
Saint Mark's WoodsConwayHwy 60 and E. Cox Ferry Rd7891
SayeBrook EastSurfsideSayeBrook Pkwy and Hwy 5442355685
SayeBrook EastSurfsidePalmetto Point Blvd2355685
SayeBrook EastSurfsideSayeBrook Pkwy and Hwy 5442355685
Seabreeze Crossing TownhomesLittle River4414 Kingsport Road580
Shell Bay EstatesConwayHighway 905022
Shelley Park SouthConwayShelly Farm Rd and Bucksville Dr0384
Shelly FarmConway580 Brown Swamp Road0205
Silver Oaks CottagesLorisNorth Cox Road031
SolserraShallotte589 Paradise Bay Blvd01000
South Inlet DevelopmentLongsW Bear Grass Rd & Circle Bay Dr0213
SouthcreekCarolina Forest4900 National Drive080
Sparrow PointLorisSparrow Ln & Suggs St011
Spring Beauty EstatesConwaySpring Beauty Drive0100
Summers CoveLittle RiverCoates Road & Highway 900212
Thamesmen VillageShallotte1125 Bay Road SW066
The Bluffs at Palmetto HarborNorth Myrtle BeachTom E. Chestnut Road041
The Meadows at Four MileConwayFour Mile Road086
The PreserveNorth Myrtle BeachHenry Road0227
The RanchLongs905 & Old Buck Creek Rd318974
The Townes@Carolina ForestCarolina ForestBuist Circle1110
Three Nineteen NorthAynorHighway 319 & Willowdale0355
TimberlineConwayAllentown Road0240
Townes @ Prince Creek WestMurrells InletWilderness Lane1000
Tupelo GroveCarolina ForestRiver Oaks Drive018
Valley RidgeLongsRte 9 & O'Steele Drive0289
Village at Highway 57Little RiverHighway 57100250
Warden StationConwayPitch Landing Rd & Hwy 70119381380
Waterfront VillasMyrtle BeachRiver Landing Boulevard1130
West Bear GrassLongsWest Bear Grass Rd071
Westbury PlantationConwayOld Reaves Ferry Road0187
WestfieldLorisHolmes Branch & Highway 9028
Wildberry EstatesLorisHighway 9 and Highway 701057
WildwoodLoris635 Highway 9 Bypass0173
Wildwood TownhomesSocasteeHardwood Drive800
Willows at Pitch LandingConwayPitch Landing Road0121
Winfield FarmsSocastee174 Winfield Farms Road0212
Winyah WoodsLongsBig Cedar Branch035
Woodland ReserveCalabashAsh Little River Rd and Jamestown Ln0673
World TourCarolina ForestWorld Tour Boulevard1800
Yadkin River PlantationLongsHemingway Road318974

NOTE: The estimated planned units above are for information purposes only and there is no guarantee on the accuracy of this data.
See Brunswick County Planning and Zoning for current data.
HOME
Page
New Homes in Myrtle Beach
By Builder
New Homes in Myrtle Beach
By Community
Useful
References
New Homes in Myrtle Beach
News
New Homes in Myrtle Beach
Future Subdivisions
New Homes in Myrtle Beach
Recently Completed
New Homes in Myrtle Beach
Site Map

The Myrtle Beach community is rapidly growing and the new construction opportunities in Myrtle Beach are ever-changing. A significant amount of time is dedicated to ensuring that the content on this site is comprehensive and accurate. The efforts of our sponsors are greatly appreciated.
New Homes in Myrtle Beach
Primary Sponsor
Vsansant Realty Group - Full service real estate brokerage serving Myrtle Beach.
(843) 940-3609

Links to Useful Resources for Longs, SC